Бизнес
Продажа от застройщика
Без комиссии
Расстояние до ближайшего города: В городе
Этажность: 1
Общая площадь: 131 м²
Количество комнат: 3
Площадь участка: 7 соток
Тип дома: Дом
Год постройки / сдачи: После 2015
Тип стен: Кирпичный
Внешнее утепление стен: Пенопласт
Тип кровли: Металлочерепица
Санузел: 2 и более
Отопление: Индивидуальное газовое
Ремонт: Под чистовую отделку
Меблирование: Нет
Комфорт: Забор, ограждение, Подогрев пола, Терраса
Коммуникации: Асфальтированная дорога, Электричество, Газ, Канализация септик, Скважина
Описание
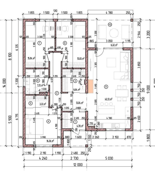
Американка площею 131м2
Площа ділянки 7 сот землі.
Дуже зручне та продумане планування: величезна кухня-вітальня з виходом на терасу та заднє подвірʼя, простора батьківська спальня з гардеробною, дві дитячі кімнати віддалені від батьківської, гостьовий санвузол, велика ванна кімната, величезна гардеробна кімната в коридорі.
Максимальна комплектація як внутрішня так і зовнішня, а саме:
Зовнішня: територія ділянки огороджена парканом. Двір вимощений бруківкою. Присутні зелені насадження. Також забудовник облагороджує територію за межами паркану, а саме дорога та пішохідні тротуари.
Внутрішня комплектація:
Чистова стяжка підлоги, чорнова штукатурка стін.
Встановлене газове автономне опалення (тепла підлога по всій площі будинку), двоконтурний котел.
Розведена електрика. розведені мокрі точки.
Є вихід під камін.
Площа ділянки 7 сот землі.
Дуже зручне та продумане планування: величезна кухня-вітальня з виходом на терасу та заднє подвірʼя, простора батьківська спальня з гардеробною, дві дитячі кімнати віддалені від батьківської, гостьовий санвузол, велика ванна кімната, величезна гардеробна кімната в коридорі.
Максимальна комплектація як внутрішня так і зовнішня, а саме:
Зовнішня: територія ділянки огороджена парканом. Двір вимощений бруківкою. Присутні зелені насадження. Також забудовник облагороджує територію за межами паркану, а саме дорога та пішохідні тротуари.
Внутрішня комплектація:
Чистова стяжка підлоги, чорнова штукатурка стін.
Встановлене газове автономне опалення (тепла підлога по всій площі будинку), двоконтурний котел.
Розведена електрика. розведені мокрі точки.
Є вихід під камін.
ID: 917061073
Связаться с продавцом
xxx xxx xxx
