Бизнес
Без комиссии
Расстояние до ближайшего города: В городе
Этаж: 35
Этажность: 47
Общая площадь: 269 м²
Год постройки / сдачи: После 2015
Санузел: Да
Ремонт: Да
Описание
Без% продам укомплектованный, стильный, видовой офис 269м² в печерском районе, по адресу Кловский спуск 7, в БЦ Корнеги, который всегда очень быстро сдается.
Продажа готового арендного бизнеса, с мебелью и техникой.
Рассчитан на 25+ рабочих мест.
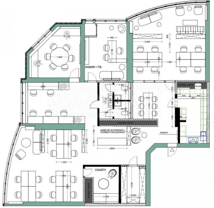
Функциональная планировка состоящая из:
Ресепшна, open space рабочего зала, кабинета руководителя, переговорной комнаты, кухни, Skype-зоны, гардеробной комнаты, душевой двух санузлов.
Планировка добавлена в объявление.
Панорамные окна открывают вид на Печерск, 35й этаж.
В офисе сделан стильный дизайнерский ремонт, с применением современных технологий акустического дизайна, полностью обесшумлен, укомплектован качественной мебелью. На кухне есть вся необходимая для офиса техника: холодильник, плита, микроволновка, чайник. Установлен бойлер, система кондиционирования, климат-контроль.
О БЦ:
Дом имеет круглосуточную охрану и видеонаблюдение. Высокоскоростные современные лифты. Прекрасное месторасположение: удобная транспортная развязка и все необходимое для ведения успешного бизнеса в шаговой доступности. БЦ Carnegie Center расположен рядом с метро Кловская, Печерская, Gulliver, GoodWine, Sparks, Sho, и множество других заведений. Метро "Кловская" – 650 метров - 8 минут пешком, метро "Арсенальная" – 850 метров - 10 минут пешком. Находится в самом центре Киева на Печерске и это самое высокое здание Украины.
Это одно из лучших предложений на рынке сейчас, сам проверил. С радостью отвечу на ваши вопросы по телефону. С коллегами работаю по системе СПП 0,5%, звоните. В моих объявлениях вы можете найти еще много интересных актуальных офисов и инвестиционных предложений, разной квадратуры, на разный бюджет. Смотрите все объявления автора.
Продажа готового арендного бизнеса, с мебелью и техникой.
Рассчитан на 25+ рабочих мест.
Функциональная планировка состоящая из:
Ресепшна, open space рабочего зала, кабинета руководителя, переговорной комнаты, кухни, Skype-зоны, гардеробной комнаты, душевой двух санузлов.
Планировка добавлена в объявление.
Панорамные окна открывают вид на Печерск, 35й этаж.
В офисе сделан стильный дизайнерский ремонт, с применением современных технологий акустического дизайна, полностью обесшумлен, укомплектован качественной мебелью. На кухне есть вся необходимая для офиса техника: холодильник, плита, микроволновка, чайник. Установлен бойлер, система кондиционирования, климат-контроль.
О БЦ:
Дом имеет круглосуточную охрану и видеонаблюдение. Высокоскоростные современные лифты. Прекрасное месторасположение: удобная транспортная развязка и все необходимое для ведения успешного бизнеса в шаговой доступности. БЦ Carnegie Center расположен рядом с метро Кловская, Печерская, Gulliver, GoodWine, Sparks, Sho, и множество других заведений. Метро "Кловская" – 650 метров - 8 минут пешком, метро "Арсенальная" – 850 метров - 10 минут пешком. Находится в самом центре Киева на Печерске и это самое высокое здание Украины.
Это одно из лучших предложений на рынке сейчас, сам проверил. С радостью отвечу на ваши вопросы по телефону. С коллегами работаю по системе СПП 0,5%, звоните. В моих объявлениях вы можете найти еще много интересных актуальных офисов и инвестиционных предложений, разной квадратуры, на разный бюджет. Смотрите все объявления автора.
ID: 795776886
Связаться с продавцом
xxx xxx xxx
Опубликовано 29 января 2026 г.
Без% 269м², центр, м. Кловкая, Печерск, Кловский спуск 7, Карнеги, СПП
890 000 $
Договорная
Местоположение
Киев, Печерский
Киевская область