Бизнес
Вид объекта: Новостройка
Готов сотрудничать с риэлторами
Тип дома: Жилой фонд от 2021 р.
Название ЖК: Avalon one
Этаж: 2
Год ввода в эксплуатацию: 2 026
Этажность: 8
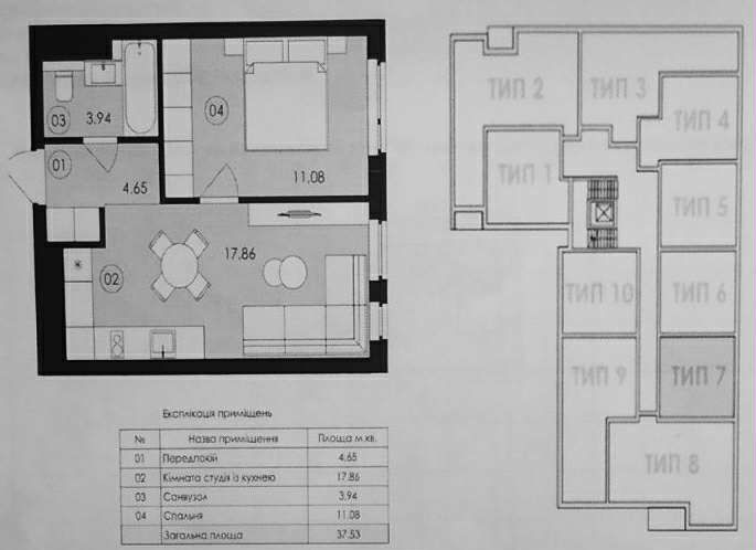
Общая площадь: 38 м²
Тип сделки: Переуступка
Площадь кухни: 18 м²
Тип стен: Кирпичный
Класс жилья: Комфорт
Количество комнат: 1 комната
Планировка: Раздельная
Санузел: Смежный
Отопление: Индивидуальное газовое
Ремонт: Под чистовую отделку
Меблирование: Нет
Мультимедиа: Скоростной интернет
Комфорт: Ванна, Кондиционер, Консъерж, Подземный паркинг, Парковочное место, Пожарная сигнализация, Видеонаблюдение, Гостевой паркинг, Охраняемая территория, Лифт
Коммуникации: Асфальтированная дорога, Газ, Центральная канализация, Вывоз отходов, Электричество, Центральный водопровод
Инфраструктура (до 500 метров): Автовокзал, Рынок, Парк, зелёная зона, Отделение банка, банкомат, Бювет, Супермаркет, ТРЦ, Аптека, Отделение почты, Ресторан, кафе, Детская площадка, Остановка транспорта, Магазин, киоск
Ландшафт (до 1 км.): Парк, Озеро
Описание
Связаться с продавцом
xxx xxx xxx
Avalon One продаж 1 кім. Кв. Вул Проектована.
53 000 $
Местоположение
Сокольники
Львовская область
