Бизнес
Этаж: 1
Этажность: 1
Общая площадь: 4 073 м²
Год постройки / сдачи: 1990 - 2000
Санузел: Да
Отопление: Индивидуальное газовое
Описание
Местонахождение: 19 км. Овидиопольской дороги, пгт. Великодолинское, Овидиопольский район, Одесская область
Земельный участок: 1,40 га
Статус землепользования: Государственный акт о праве собственности на земельный участок
Кадастровый номер: 5123755300:02:002:0001
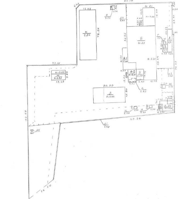
Общая площадь зданий: 4073,2 кв.м кв.м., из которых:
- Административное здание - 341,2 кв.м.
- СТО - 1390,4 кв.м.
- Навес - 156 кв.м.
- Теплогенераторная -14,1 кв.м.
- Складские помещения - 573,6 кв.м.
- Гостиничный домик с верандой и мансардой - 191 кв.м.
- Беседки - 10,6 кв.м.
- Складской ангар - 478,7 кв.м. Складской ангар - 478,7 кв.м.
- Мойка -124,2 кв.м.
- Пост охраны -13,5 кв.м.
- Таможенный склад -779,9 кв.м.
Коммуникации:
- Электричество: собственная ТП 150кВт
- Водоснабжение: городское
- Водоотведение: выгребная яма
- Газоснабжение: городское
- Отопление: газовые котлы и дизельный теплогенератор
- Территория покрыта асфальтом.
- Территория обнесена забором
Возможна продажа всего комплекса
Земельный участок: 1,40 га
Статус землепользования: Государственный акт о праве собственности на земельный участок
Кадастровый номер: 5123755300:02:002:0001
Общая площадь зданий: 4073,2 кв.м кв.м., из которых:
- Административное здание - 341,2 кв.м.
- СТО - 1390,4 кв.м.
- Навес - 156 кв.м.
- Теплогенераторная -14,1 кв.м.
- Складские помещения - 573,6 кв.м.
- Гостиничный домик с верандой и мансардой - 191 кв.м.
- Беседки - 10,6 кв.м.
- Складской ангар - 478,7 кв.м. Складской ангар - 478,7 кв.м.
- Мойка -124,2 кв.м.
- Пост охраны -13,5 кв.м.
- Таможенный склад -779,9 кв.м.
Коммуникации:
- Электричество: собственная ТП 150кВт
- Водоснабжение: городское
- Водоотведение: выгребная яма
- Газоснабжение: городское
- Отопление: газовые котлы и дизельный теплогенератор
- Территория покрыта асфальтом.
- Территория обнесена забором
Возможна продажа всего комплекса
ID: 796491684
Связаться с продавцом
xxx xxx xxx
Опубликовано 10 декабря 2025 г.
Аренда производственно-складских помещений 1,4гектар
4 000 $
Местоположение
Великодолинское
Одесская область