Бизнес
Без комиссии
Расстояние до ближайшего города: В городе
Расположение: Фасадное помещение
Тип объекта: Нежилое помещение в жилом фонде
Этаж: 1
Общая площадь: 100 м²
Описание
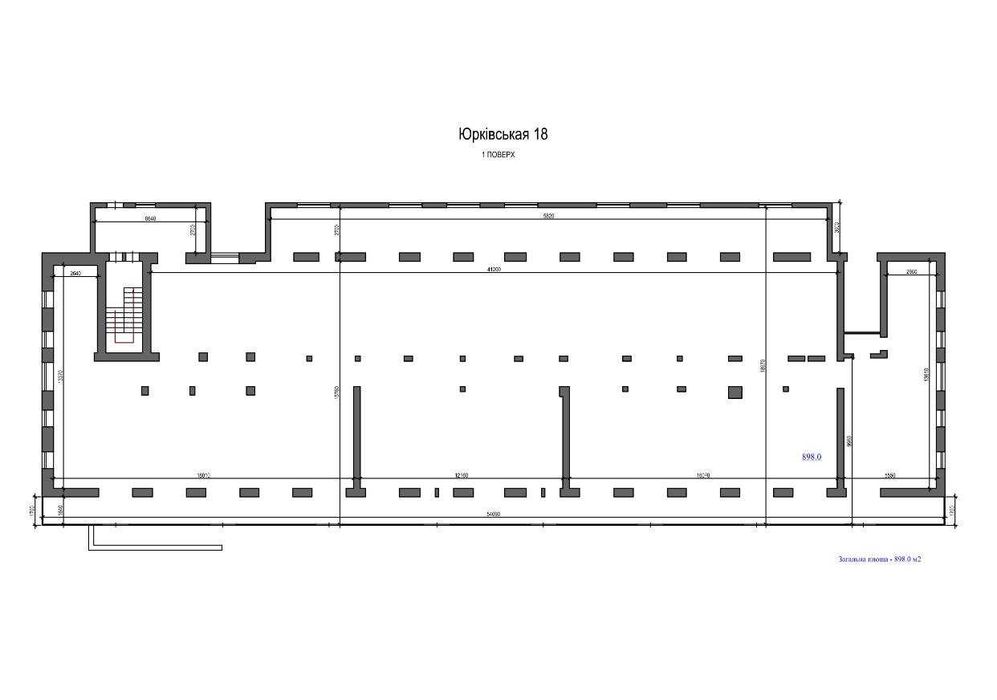
Юрківська, 18 — Поділ
Оренда комерційного приміщення в самому серці Подолу.
Площа — понад 800 м², формат open space, панорамні вітрини вздовж вулиці.
Приміщення легко адаптувати під будь-який тип бізнесу: кав’ярню, салон, магазин, шоурум або маркет.
Активна пішохідна зона, історичний район, стабільний трафік.
- Фасад, панорамні вітрини
- Вільне планування
- Розвинена інфраструктура Подолу
Оренда комерційного приміщення в самому серці Подолу.
Площа — понад 800 м², формат open space, панорамні вітрини вздовж вулиці.
Приміщення легко адаптувати під будь-який тип бізнесу: кав’ярню, салон, магазин, шоурум або маркет.
Активна пішохідна зона, історичний район, стабільний трафік.
- Фасад, панорамні вітрини
- Вільне планування
- Розвинена інфраструктура Подолу
ID: 904226677
Связаться с продавцом
xxx xxx xxx
Опубликовано 22 октября 2025 г.
78м2 / Оренда торгівельної площі / Поділ
160 480 грн.
Местоположение
Киев, Подольский
Киевская область