Бизнес
Без комиссии
Расстояние до ближайшего города: В городе
Расположение: Отдельное здание
Тип объекта: Бизнес-центр
Этаж: 1
Этажность: 3
Общая площадь: 2 880 м²
Год постройки / сдачи: Не этапе строительства
Санузел: Да
Тип офиса: Open space
Отопление: Централизованное
Класс офиса: Категория B
Ремонт: Нет
Меблирование: Нет
Коммуникации: Асфальтированная дорога, Центральная канализация, Электричество, Газ, Центральный водопровод
Инфраструктура (до 500 метров): Центр города, Офисы, бизнес центр, Супермаркет, ТРЦ, Транспортная развязка
Описание
Оренда окремої будівлі 2880 кв.м у Центральному р-н ПІД РЕМОНТ.
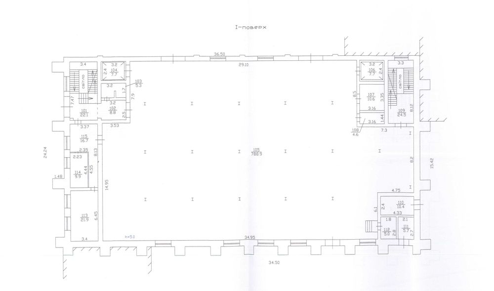
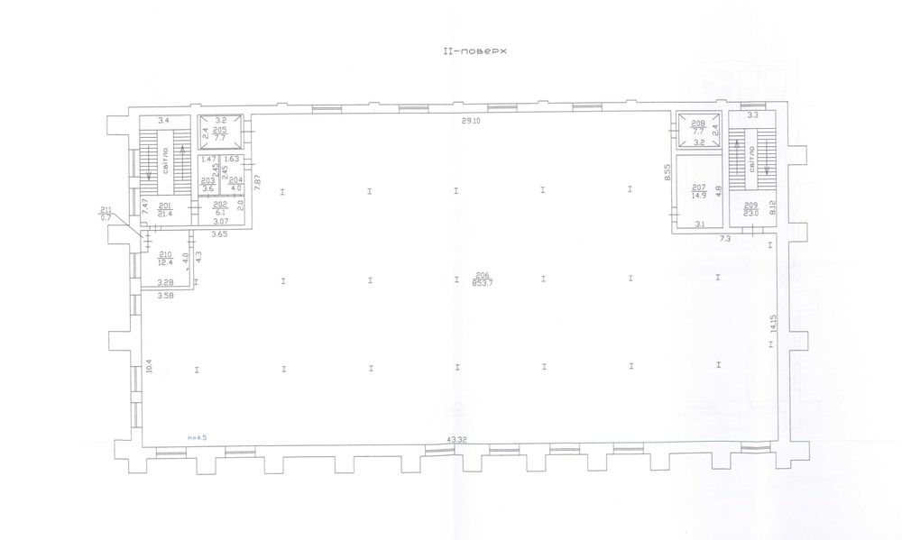
Адреса: м. Дніпро, вул. Павла Скоропадського (Столярова), 16.
Складається з:
1 поверх - 949,8 кв.м,
2 поверх - 955,2 кв.м,
3 поверх – 974,8 кв.м.
Об'єкт підлягає реконструкції/ремонту.
На фото зображений можливий проект майбутнього БЦ.
Комунікації:
Електрика – 160 кВт
Вода, каналізація
Газ – проект підключення, труба підведена до будівлі (тиск середній).
Інфраструктура: об'єкт розташований у Центральному районі Дніпра, 100 м – до зупинок громадського транспорту, 400 м – до проспекту Яворницького.
Умови оренди: ставка 5 грн/кв.м. Фіксація орендної ставки 5 років.
Ремонт за рахунок орендаря. Надаємо проект для реалізації ремонту на фото.
Додатково сплачуються комунальні послуги.
Співпрацюємо з ріелторами – оплачуємо 50% комісії
Адреса: м. Дніпро, вул. Павла Скоропадського (Столярова), 16.
Складається з:
1 поверх - 949,8 кв.м,
2 поверх - 955,2 кв.м,
3 поверх – 974,8 кв.м.
Об'єкт підлягає реконструкції/ремонту.
На фото зображений можливий проект майбутнього БЦ.
Комунікації:
Електрика – 160 кВт
Вода, каналізація
Газ – проект підключення, труба підведена до будівлі (тиск середній).
Інфраструктура: об'єкт розташований у Центральному районі Дніпра, 100 м – до зупинок громадського транспорту, 400 м – до проспекту Яворницького.
Умови оренди: ставка 5 грн/кв.м. Фіксація орендної ставки 5 років.
Ремонт за рахунок орендаря. Надаємо проект для реалізації ремонту на фото.
Додатково сплачуються комунальні послуги.
Співпрацюємо з ріелторами – оплачуємо 50% комісії
ID: 859854819
Связаться с продавцом
xxx xxx xxx

