Бизнес
Вид объекта: Новостройка
Без комиссии
Тип дома: Жилой фонд от 2021 р.
Название ЖК: ЖК DOCK32
Этаж: 25
Этажность: 26
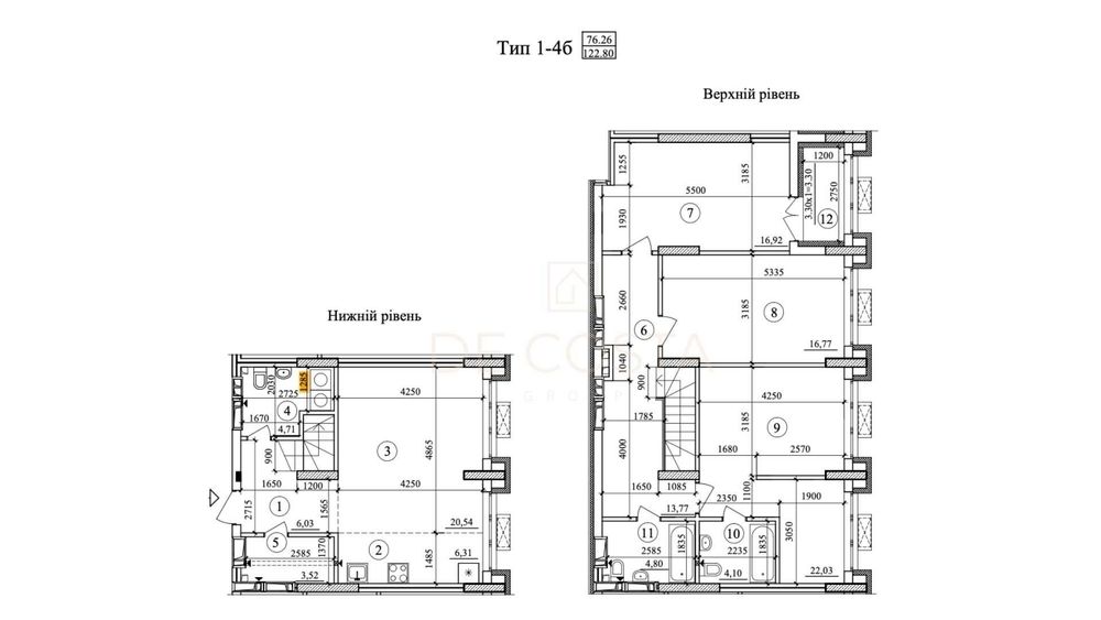
Общая площадь: 123.30 м²
Площадь кухни: 30 м²
Тип стен: Монолитный
Класс жилья: Комфорт
Количество комнат: 5+ комнат
Планировка: Раздельная
Санузел: 2 и более
Отопление: Централизованное
Ремонт: После строителей
Меблирование: Нет
Комфорт: Видеонаблюдение, Консъерж, Лифт, Охраняемая территория, Грузовой лифт
Инфраструктура (до 500 метров): Супермаркет, ТРЦ
Ландшафт (до 1 км.): Река
Описание
Дворівнева квартира з панорамним видом на Дніпро у ЖК 'DOCK32' без комісії!
Адреса: Київ, Оболонський, просп. Степана Бандери, 32Д, м. Петрівка
Основна інформація:
* Ціна: 210 000 $
* Кімнат: 4 окремі
* Поверх: 25-26
* Загальна площа: 123,3 м²
* Житлова площа: 76,26 м²
* Балкон: Лоджія
* Санвузли: 3 роздільні
Опис квартири: Пропонується на продаж видова дворівнева квартира з панорамним видом на Дніпро у житловому комплексі комфорт-класу 'DOCK32', розташована за адресою: просп. Степана Бандери, 32Д, секція 1, поверхи 25-26.
Планування:
* 4 окремі кімнати
* Простора кухня-студія
* 3 санвузли
* Гардеробна
* Передпокій
Стан квартири:
* Ремонт від забудовника, що дозволяє реалізувати всі ваші дизайнерські ідеї.
* Підлога з лазерною стяжкою, готова під чистове оздоблення.
* Є відеоогляд квартири.
Переваги житлового комплексу 'DOCK32':
* Стиль концепт-лофт: Архітектурні рішення з посиланнями до промислової естетики, зовнішній вигляд комплексу викликає асоціації з верф'ю та корабельними доками.
* Паркінг: Підземний дворівневий паркінг зі швидкісними ліфтами, які спускаються прямо в паркінг.
* Безпека: Закрита територія, що охороняється.
* Зручне розташування: Близькість до Подолу, Оболоні та Петрівки.
* Інфраструктура: У пішій доступності ТРЦ «Блокбастер», Парк Наталка. Sky Family Park з фудкортом, пляжною зоною, лаунж зоною на газоні, басейном, дитячою ігровою зоною, вейк-станцією та іншими розвагами на воді.
Контакти: Звертайтесь для додаткової інформації та огляду! Без комісії!
Адреса: Київ, Оболонський, просп. Степана Бандери, 32Д, м. Петрівка
Основна інформація:
* Ціна: 210 000 $
* Кімнат: 4 окремі
* Поверх: 25-26
* Загальна площа: 123,3 м²
* Житлова площа: 76,26 м²
* Балкон: Лоджія
* Санвузли: 3 роздільні
Опис квартири: Пропонується на продаж видова дворівнева квартира з панорамним видом на Дніпро у житловому комплексі комфорт-класу 'DOCK32', розташована за адресою: просп. Степана Бандери, 32Д, секція 1, поверхи 25-26.
Планування:
* 4 окремі кімнати
* Простора кухня-студія
* 3 санвузли
* Гардеробна
* Передпокій
Стан квартири:
* Ремонт від забудовника, що дозволяє реалізувати всі ваші дизайнерські ідеї.
* Підлога з лазерною стяжкою, готова під чистове оздоблення.
* Є відеоогляд квартири.
Переваги житлового комплексу 'DOCK32':
* Стиль концепт-лофт: Архітектурні рішення з посиланнями до промислової естетики, зовнішній вигляд комплексу викликає асоціації з верф'ю та корабельними доками.
* Паркінг: Підземний дворівневий паркінг зі швидкісними ліфтами, які спускаються прямо в паркінг.
* Безпека: Закрита територія, що охороняється.
* Зручне розташування: Близькість до Подолу, Оболоні та Петрівки.
* Інфраструктура: У пішій доступності ТРЦ «Блокбастер», Парк Наталка. Sky Family Park з фудкортом, пляжною зоною, лаунж зоною на газоні, басейном, дитячою ігровою зоною, вейк-станцією та іншими розвагами на воді.
Контакти: Звертайтесь для додаткової інформації та огляду! Без комісії!
ID: 853228468
Связаться с продавцом
xxx xxx xxx

