Бизнес
Вид объекта: Новостройка
Тип дома: Жилой фонд от 2021 р.
Этаж: 8
Этажность: 8
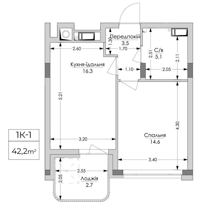
Общая площадь: 42.20 м²
Площадь кухни: 16.30 м²
Тип стен: Монолитный
Класс жилья: Бизнес
Количество комнат: 1 комната
Планировка: Раздельная
Санузел: Смежный
Отопление: Индивидуальное газовое
Ремонт: После строителей
Комфорт: Видеонаблюдение, Балкон, лоджия, Лифт, Пожарная сигнализация, Подземный паркинг, Гостевой паркинг, Панорамные окна, Охраняемая территория, Автономный электрогенератор
Коммуникации: Центральная канализация, Электричество, Газ, Центральный водопровод
Инфраструктура (до 500 метров): Отделение банка, банкомат, Центр города, Аптека, Больница, поликлиника, Детский сад, Детская площадка, Ресторан, кафе, Супермаркет, ТРЦ, Остановка транспорта
Описание
У наявності є інші варіанти 1-, 2-, 3-кімнатних квартир від забудовника.
Діє розтермінування першим внеском від 30%.
У пішій доступності (5-10 хвилин) розташовані школи, дитсадки, ТЦ «FORUM», супермаркети «Ашан» і «Сільпо», басейн, медична клініка «Веселка», «МакДональдз» тощо.
Квартира розміщена на 8 поверсі ЖК. Площа - 42.2 м2.
Связаться с продавцом
xxx xxx xxx

