Бизнес
Вид объекта: Вторичка
Без комиссии
Тип дома: Жилой фонд от 2021 р.
Название ЖК: Podil Plaza & Residence
Этаж: 22
Этажность: 23
Общая площадь: 178 м²
Площадь кухни: 18 м²
Тип стен: Монолитный
Класс жилья: Бизнес
Количество комнат: 4 комнаты
Планировка: Раздельная
Санузел: 2 и более
Отопление: Собственная котельная
Ремонт: После строителей
Меблирование: Нет
Описание
До продажу пропонується супервидова 4 кімнатна квартира в ЖК бізнес класу Podil Plaza & Residence по вул.Глибочицька 73
Простора, світла видова квартира квартира .
Панорамні вікна, відкривається вид на весь Київ, Поділ, Андріївська церква, Воздвиженка, також вид на Дніпро.
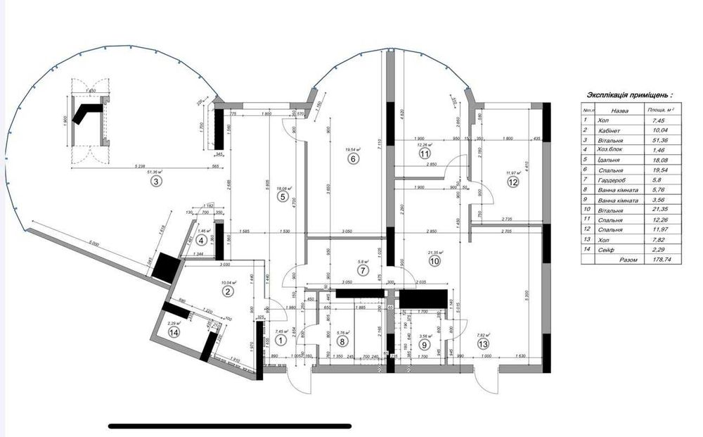
22-й поверх, площа: 178 кв.м.
В квартирі частково зроблений ремонт.
По всій квартирі зроблена тепла підлога, розведена електрика, утеплені і обезшумлені стіни та частково зроблена штукатурка.
Також закуплений якісний матеріал для ремонту квартири який передається новому власнику.
В ціну квартири входить дизайн проект квартири.
Площа квартири 178 кв.м. в квартирі:
-Три окремі спальні 11.97, 12.26 і 19.54 кв.м
-Вітальня 51.36 кв.м
- Їдальня 18.08 кв.м
- Кабінет
- Два санвузли
- Гардероб
Презентабельна вхідна група з рецепцією. Перший поверх відведено під комерцію.
Також на першому поверсі є зона відпочинку, кав'ярня
Відмінна інфраструктура.
До станції метро Контрактова Площа 10 хвилин пішки.
ЖК Podil Plaza & Residence
Запрошуємо на перегляд. Квартира варта Вашої уваги!!!
Простора, світла видова квартира квартира .
Панорамні вікна, відкривається вид на весь Київ, Поділ, Андріївська церква, Воздвиженка, також вид на Дніпро.
22-й поверх, площа: 178 кв.м.
В квартирі частково зроблений ремонт.
По всій квартирі зроблена тепла підлога, розведена електрика, утеплені і обезшумлені стіни та частково зроблена штукатурка.
Також закуплений якісний матеріал для ремонту квартири який передається новому власнику.
В ціну квартири входить дизайн проект квартири.
Площа квартири 178 кв.м. в квартирі:
-Три окремі спальні 11.97, 12.26 і 19.54 кв.м
-Вітальня 51.36 кв.м
- Їдальня 18.08 кв.м
- Кабінет
- Два санвузли
- Гардероб
Презентабельна вхідна група з рецепцією. Перший поверх відведено під комерцію.
Також на першому поверсі є зона відпочинку, кав'ярня
Відмінна інфраструктура.
До станції метро Контрактова Площа 10 хвилин пішки.
ЖК Podil Plaza & Residence
Запрошуємо на перегляд. Квартира варта Вашої уваги!!!
ID: 898170982
Связаться с продавцом
xxx xxx xxx
