Бизнес
Вид объекта: Новостройка
Без комиссии
Подходит под требования єОселя
Тип дома: Жилой фонд от 2021 р.
Название ЖК: ЖК Моцарт
Этаж: 9
Этажность: 12
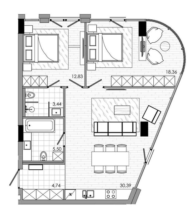
Общая площадь: 76 м²
Площадь кухни: 25 м²
Тип стен: Монолитный
Класс жилья: Элит
Количество комнат: 3 комнаты
Планировка: Свободная планировка
Отопление: Собственная котельная
Ремонт: После строителей
Мультимедиа: Кабельное, цифровое ТВ, Скоростной интернет, Wi-Fi
Комфорт: Видеонаблюдение, Балкон, лоджия, Консъерж, Лифт, Пожарная сигнализация, Подземный паркинг, Гостевой паркинг, Панорамные окна, Охраняемая территория, Грузовой лифт
Коммуникации: Асфальтированная дорога, Центральная канализация, Электричество, Вывоз отходов, Центральный водопровод
Инфраструктура (до 500 метров): Отделение банка, банкомат, Кинотеатр, театр, Центр города, Детский сад, Парк, зелёная зона, Детская площадка, Отделение почты, Ресторан, кафе, Школа, Магазин, киоск, Супермаркет, ТРЦ, Остановка транспорта
Ландшафт (до 1 км.): Парк, Река
Описание
Премиальный класс в самом центре города.
Введен в эксплуатацию.
Этаж - 9, этажность - 12.
Площадь – 76 м2. Окон - 12.
Высота потолков - 3 м.
Состояние после строителей.
Свободная планировка.
Планируется в кухню студию и 1-2 спальни.
Панорамное остекление
Автономное отопление.
Закрытый двор.
Цена 125 565$
С уважением, Анастасия Коломиец
Consulting Agency "KB"
Рада Вас слышать:
Связаться с продавцом
xxx xxx xxx

