Бизнес
Вид объекта: Вторичка
Название ЖК: ЖК Львівський затишок
Этаж: 2
Этажность: 3
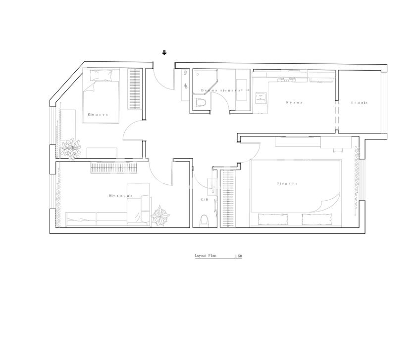
Общая площадь: 76.80 м²
Площадь кухни: 12.30 м²
Количество комнат: 3 комнаты
Планировка: Раздельная
Санузел: 2 и более
Отопление: Индивидуальное газовое
Ремонт: После строителей
Инфраструктура (до 500 метров): Детский сад, Школа, Остановка транспорта, Рынок, Магазин, киоск, Супермаркет, ТРЦ, Парк, зелёная зона, Детская площадка, Центр города, Ресторан, кафе, Кинотеатр, театр, Отделение почты, Отделение банка, банкомат
Ландшафт (до 1 км.): Парк
Описание
Пропонується до продажу 3-кімнатна квартира у ЖК «Львівський затишок» (Софіївська Борщагівка, вул. Відпочинку). Ідеальний варіант для тих, хто цінує спокій, зелень та комфортне життя поруч із Києвом.
Квартира доступна для придбання за державними програмами: ДМЖ, єВідновлення, єОселя (3% або 7%).
Основні характеристики:
- 2-й поверх із 4, цегляний будинок.
- Загальна площа — 76,8 м2, житлова — 47,7 м2, кухня — 12,3 м2.
- Закрита (засклена) лоджія — можна облаштувати робочий простір або зону відпочинку.
- Проведено електрику та сантехніку, встановлено двоконтурний газовий котел.
ЖК «Львівський затишок» — комфортний та продуманий комплекс із дитячими майданчиками, парковками та магазинами. До метро Академмістечко — близько 20–30 хв маршруткою (9–10 км).
Тиша, зелень та зручна інфраструктура поруч — телефонуйте, щоб домовитися про перегляд!
Можливе придбання в кредит за програмою ДМЖ, єОселя 3%, 7%, єОселя 7% (ВПО)
Код об'єкта: k777`383425`27. АН "Атланта".
Більше інформації та світлин за посиланням: https://www.atlanta.ua/kiev/object/3komnatnye/383425
Квартира доступна для придбання за державними програмами: ДМЖ, єВідновлення, єОселя (3% або 7%).
Основні характеристики:
- 2-й поверх із 4, цегляний будинок.
- Загальна площа — 76,8 м2, житлова — 47,7 м2, кухня — 12,3 м2.
- Закрита (засклена) лоджія — можна облаштувати робочий простір або зону відпочинку.
- Проведено електрику та сантехніку, встановлено двоконтурний газовий котел.
ЖК «Львівський затишок» — комфортний та продуманий комплекс із дитячими майданчиками, парковками та магазинами. До метро Академмістечко — близько 20–30 хв маршруткою (9–10 км).
Тиша, зелень та зручна інфраструктура поруч — телефонуйте, щоб домовитися про перегляд!
Можливе придбання в кредит за програмою ДМЖ, єОселя 3%, 7%, єОселя 7% (ВПО)
Код об'єкта: k777`383425`27. АН "Атланта".
Більше інформації та світлин за посиланням: https://www.atlanta.ua/kiev/object/3komnatnye/383425
ID: 903424950
Связаться с продавцом
xxx xxx xxx
