Бизнес
Вид объекта: Новостройка
Без комиссии
Подходит под требования єОселя
Тип дома: Жилой фонд от 2021 р.
Название ЖК: Kvartal Soborna
Этаж: 4
Год ввода в эксплуатацию: 2 025
Этажность: 5
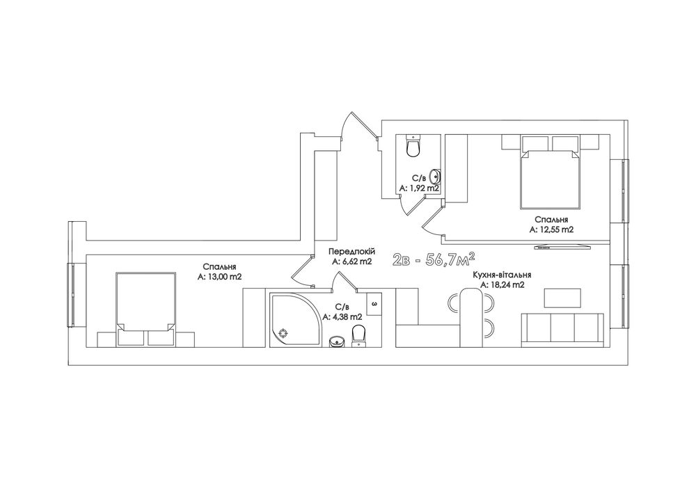
Общая площадь: 57 м²
Тип сделки: От застройщика, Рассрочка от застройщика
Площадь кухни: 18 м²
Тип стен: Кирпичный
Класс жилья: Комфорт
Количество комнат: 2 комнаты
Планировка: Двухсторонняя
Санузел: Раздельный
Отопление: Индивидуальное газовое
Ремонт: После строителей
Меблирование: Нет
Бытовая техника: Без бытовой техники
Мультимедиа: Кабельное, цифровое ТВ, Скоростной интернет
Комфорт: Гостевой паркинг, Панорамные окна, Парковочное место
Инфраструктура (до 500 метров): Отделение банка, банкомат, Аптека, Больница, поликлиника, Детский сад, Парк, зелёная зона, Детская площадка, Отделение почты, Ресторан, кафе, Супермаркет, ТРЦ, Остановка транспорта
Ландшафт (до 1 км.): Лес, Парк, Река
Описание
Планування ідеально підходить для родини! У кухні-вітальні площею 18 кв.м., зручно буде збиратися разом за сімейним обідом або спільними розвагами. Просторі спальні розташовані по різні сторони одна від одної, що додає відчуття приватності, коли хочеться залишитися у своєму власному просторі. В квартирі наявні 2 санвузли, а в коридорі продумано місце для великої шафи.
ЖК розташований на центральній вулиці міста. Для мешканців це означає швидкий доступ до всіх важливих інфраструктурних об’єктів:
- в радіусі 500-700 метрів є два державних садочки, два сквери, міський парк;
- 150 метрів до великого супермаркету та районної амбулаторії;
- безпосередньо біля будинку знаходяться зупинки громадського транспорту.
63 000$ за квартиру на 34 поверсі.
Не втрачайте свою вигоду, телефонуйте і записуйтесь на перегляд вже сьогодні!
Связаться с продавцом
xxx xxx xxx
