Бизнес
Без комиссии
Расстояние до ближайшего города: до 30 км.
Этажность: 2
Общая площадь: 248 м²
Количество комнат: 10
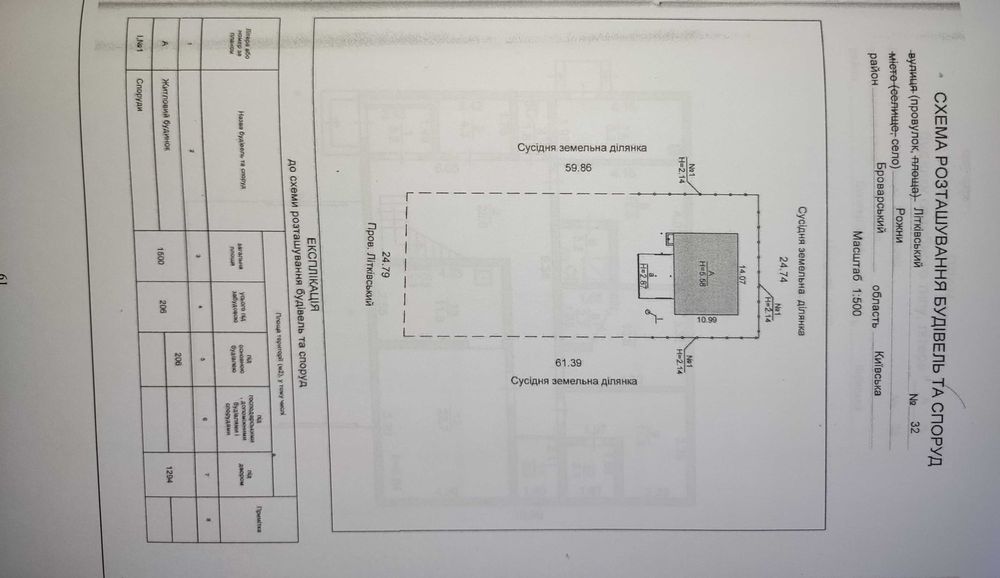
Площадь участка: 15 соток
Тип дома: Коттедж
Год постройки / сдачи: После 2015
Тип стен: Деревянный
Внешнее утепление стен: Базальт
Санузел: 2 и более
Отопление: Комбинированное
Ремонт: Авторский проект
Мультимедиа: Скоростной интернет
Комфорт: Видеонаблюдение, Балкон, Забор, ограждение, Подогрев пола, Сигнализация, Автономный электро генератор, Терраса
Коммуникации: Электричество, Канализация септик, Скважина
Ландшафт (до 1 км.): Лес, Холмы, Озеро, Парк, Река
Описание
Продається двоповерховий "канадський теплий" будинок 250 м.кв. у Рожнах (25 км від Києва, 20 км від Броварів)
700 метрів до баз відпочинку Літок, пляжів Десни та лісу, для великої родини чи під міні-готель.
В будинку 6 спалень, перший поверх (3 спальні із с/у) можна влітку здавати відпочиваючим від 2000 грн. на добу за кожну спальню, мульти-котельня, другий поверх під оздоблення.
Діляка 15 соток, власний ставок на ділянці, до остерської траси 300 м.
Введено в експлуатацію у 2021 році.
- від Києва 25 км, у тиші й на чистому йодистому від Десни повітрі - в курортній місцевості Літки Київської області біля Десни й заповідника Залісся - поміж селами Рожни та Літки (25 км от Києва).
6 кімнат із усіма зручностями у кожному, 4 з якіх готові для проживання і 2 чекають на чистове оздоблення (три однокімнатні на першому поверсі, і на другому - один двокімнатний готовий і дві великі однокімнатні під чистове оздоблення, комора).
На першому поверсі також столова та кухня з коморою, пральня. В котельню окремий вхід.
На території є зариблена карасиками копанка на місці старого русла Десни.
Котедж розташований у мальовничій місцевості посеред зелених галявин, в 700 метрах від баз відпочинку та пляжів Десни з одного боку і близько 800 метрів від заповідника Залісся. До зупинки автобуса та остерської траси 300 метрів.
Поруч розташована електрична підстанція, тому напруга стабільна 220-240В на всіх трьох фазах. До будинку підведено 16 КВТ електроенергії та високошвидкісний гигабітний інтернет - оптволокно на 1гб швидкості. Є міні зарядна станція для електромобіля.
Котельня комбінована, можна топити дровами, брикетами, вугіллям, електроенергією, та закладена можливість опалення сонячними колекторами. На першому поверсі водяна тепла підлога, на другому - радіатору.
Технологія будівництва - ТЕПЛИЙ БУДИНОК - екологічна канадська: дере'яний каркас, утеплений базальтовою ватою. Ззовні будинок оздоблений дерев'яний фальш-брус.
Велика веранда на вулиці, яку можна переоздобити під зимовий сад.
За подробицями - приїжджайте на оглядини.
700 метрів до баз відпочинку Літок, пляжів Десни та лісу, для великої родини чи під міні-готель.
В будинку 6 спалень, перший поверх (3 спальні із с/у) можна влітку здавати відпочиваючим від 2000 грн. на добу за кожну спальню, мульти-котельня, другий поверх під оздоблення.
Діляка 15 соток, власний ставок на ділянці, до остерської траси 300 м.
Введено в експлуатацію у 2021 році.
- від Києва 25 км, у тиші й на чистому йодистому від Десни повітрі - в курортній місцевості Літки Київської області біля Десни й заповідника Залісся - поміж селами Рожни та Літки (25 км от Києва).
6 кімнат із усіма зручностями у кожному, 4 з якіх готові для проживання і 2 чекають на чистове оздоблення (три однокімнатні на першому поверсі, і на другому - один двокімнатний готовий і дві великі однокімнатні під чистове оздоблення, комора).
На першому поверсі також столова та кухня з коморою, пральня. В котельню окремий вхід.
На території є зариблена карасиками копанка на місці старого русла Десни.
Котедж розташований у мальовничій місцевості посеред зелених галявин, в 700 метрах від баз відпочинку та пляжів Десни з одного боку і близько 800 метрів від заповідника Залісся. До зупинки автобуса та остерської траси 300 метрів.
Поруч розташована електрична підстанція, тому напруга стабільна 220-240В на всіх трьох фазах. До будинку підведено 16 КВТ електроенергії та високошвидкісний гигабітний інтернет - оптволокно на 1гб швидкості. Є міні зарядна станція для електромобіля.
Котельня комбінована, можна топити дровами, брикетами, вугіллям, електроенергією, та закладена можливість опалення сонячними колекторами. На першому поверсі водяна тепла підлога, на другому - радіатору.
Технологія будівництва - ТЕПЛИЙ БУДИНОК - екологічна канадська: дере'яний каркас, утеплений базальтовою ватою. Ззовні будинок оздоблений дерев'яний фальш-брус.
Велика веранда на вулиці, яку можна переоздобити під зимовий сад.
За подробицями - приїжджайте на оглядини.
ID: 897857577
Связаться с продавцом
xxx xxx xxx
Опубликовано 04 января 2026 г.
250 кв.м. за $195к. Еко-будинок неподалік р. Десна
195 000 $
Местоположение
Рожны
Киевская область