Бизнес
Расстояние до ближайшего города: В городе
Общая площадь: 236 м²
Санузел: Да
Отопление: Централизованное
Ремонт: Да
Комфорт: Видеонаблюдение, Кондиционер, Гостевой паркинг, Панорамные окна, Парковочное место, Охраняемая территория, Сигнализация
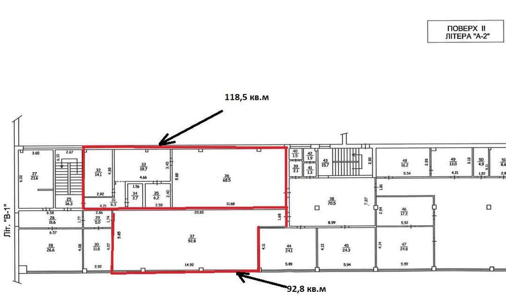
Описание
Здається приміщення - оплата з ПДВ!
Трифазна електроенергія, вода, водовідвід, приточно-витяжна вентиляція, обігрів.
Обєкт складається з трьох суміжних блоків:
1) 118,5м2 - з водою і каналізацією
2) 92,8м2 - опен спейс
3) 24,3м2 - окремий кабінет
Три окремі вхідні зони.
Зручне розташування, паркувальна зона зовні на фасаді та всередині двору.
Ідеально для офісу, кол-центру, відділу продажів, легкого виробництва.
Наша компанія спеціалізується на оренді та продажу виробничих, складських, торгових обєктів та земельних ділянок комерційного призначення. Звертайтеся - кваліфікований підхід гарантовано досвідом.
Трифазна електроенергія, вода, водовідвід, приточно-витяжна вентиляція, обігрів.
Обєкт складається з трьох суміжних блоків:
1) 118,5м2 - з водою і каналізацією
2) 92,8м2 - опен спейс
3) 24,3м2 - окремий кабінет
Три окремі вхідні зони.
Зручне розташування, паркувальна зона зовні на фасаді та всередині двору.
Ідеально для офісу, кол-центру, відділу продажів, легкого виробництва.
Наша компанія спеціалізується на оренді та продажу виробничих, складських, торгових обєктів та земельних ділянок комерційного призначення. Звертайтеся - кваліфікований підхід гарантовано досвідом.
ID: 905612700
Связаться с продавцом
xxx xxx xxx
Опубликовано 05 ноября 2025 г.
236м2 Сухоярська біля МРЕО
23 600 грн.
Местоположение
Белая Церковь
Киевская область
