Бизнес
Вид объекта: Новостройка
Без комиссии
Тип дома: Жилой фонд от 2021 р.
Название ЖК: Синергія Сіті
Этаж: 6
Год ввода в эксплуатацию: 2 025
Этажность: 6
Общая площадь: 65 м²
Тип сделки: От застройщика, Рассрочка от застройщика
Площадь кухни: 15 м²
Тип стен: Монолитный
Класс жилья: Бизнес
Количество комнат: 2 комнаты
Планировка: Раздельная
Санузел: Раздельный
Отопление: Индивидуальное газовое
Ремонт: После строителей
Комфорт: Видеонаблюдение, Лифт, Пожарная сигнализация, Парковочное место, Охраняемая территория, Грузовой лифт, Автономный электрогенератор
Коммуникации: Асфальтированная дорога, Центральная канализация, Электричество, Вывоз отходов, Газ, Центральный водопровод
Инфраструктура (до 500 метров): Отделение банка, банкомат, Кинотеатр, театр, Больница, поликлиника, Детский сад, Парк, зелёная зона, Детская площадка, Отделение почты, Школа, Супермаркет, ТРЦ, Остановка транспорта
Ландшафт (до 1 км.): Лес, Парк, Река
Инклюзивность: Лифт размером не менее 1,1х1,4 м., Голосовые уведомления в лифте, Наличие контрастных маркировок, Вход в уровень с улицей, Тактильные полосы на полу
Описание
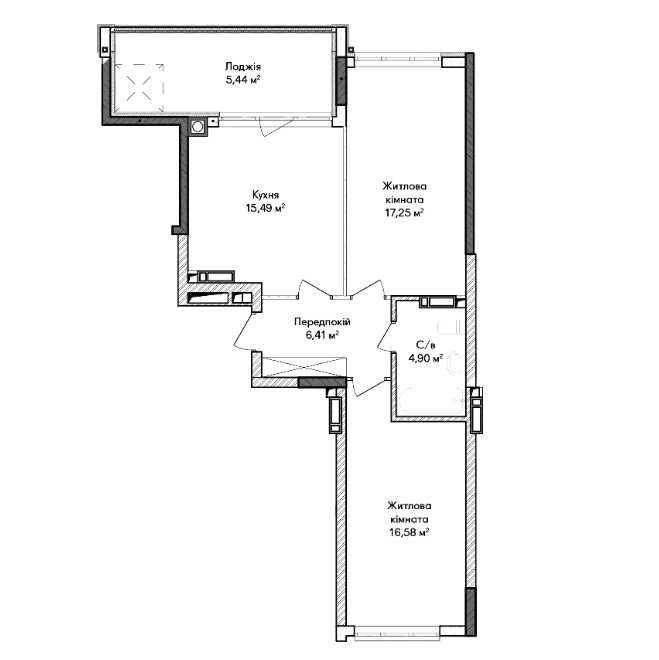
2-кімнатна квартира — 65,07 м²
Ціна: 3 513 780грн
Вартість м²: 54 000 грн/м²
У комплексі зроблено акцент на енергонезалежність і комфорт: газове опалення, можливість підключення EcoFlow для підтримки тепла в квартирі, газові плити, на яких можна готувати навіть під час відключень світла.
Простора 2-кімнатна квартира з продуманим плануванням та великою загальною площею.
Формат ідеально підходить для комфортного життя сім’ї: повноцінні кімнати, зручна кухня та лоджія площею 5,44 м², яку можна використати як зону відпочинку або додатковий простір.
Шестиповерховий формат забезпечує меншу кількість сусідів, спокійні під’їзди та більш камерну атмосферу проживання.
Чому варто розглянути
— велика площа для 2-кімнатної квартири;
— простора лоджія 5,44 м²;
— сучасний житловий комплекс із повноцінною інфраструктурою.
Локація
Synergia City — це закрита територія, безпека, зони відпочинку, дитячі та спортивні майданчики, зручне сполучення з Києвом.
Квартира для тих, хто хоче простір, спокій і новий будинок у найкращому форматі комплексу.
3 8 0 9 3 1 7 0 7 7 0 7
Связаться с продавцом
xxx xxx xxx

