Бизнес
Вид объекта: Новостройка
Подходит под требования єОселя
Тип дома: Жилой фонд от 2021 р.
Название ЖК: ЖК ЗЕЛЕНИЙ МИС
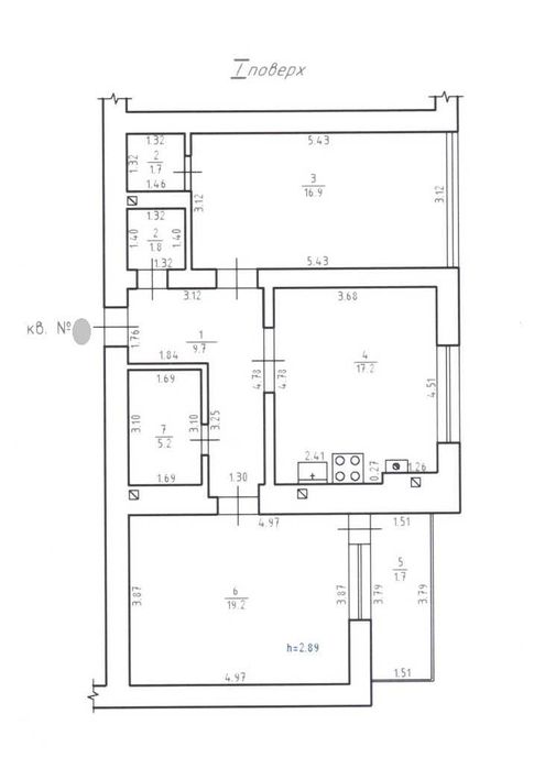
Этаж: 1
Этажность: 9
Общая площадь: 73.40 м²
Площадь кухни: 17.20 м²
Тип стен: Кирпичный
Количество комнат: 2 комнаты
Планировка: Раздельная
Санузел: Смежный
Отопление: Индивидуальное газовое
Ремонт: После строителей
Меблирование: Нет
Описание
Код об'єкта: 386555. АН "Атланта".
Пропонуємо у продаж 2 кімнатну простору квартиру в новому елітному мікрорайоні на березі мальовничого озера!!
Комплекс Преміум класу "Зелений мис". 3й Англійський дім.
Цегляний будинок, у квартирі своє індивідуальне опалення.
Просторі житлові кімнати -19,2 кв.м та 16,9 кв. м. Велика кухня із виходом на балкон-17,2 кв.м.
Вбиральня.
Стан від будівельників дозволяє зробити власний дизайн ремонт.
Комфортний перший поверх.
Англійський будинок у Зеленому мисі – це комплекс бізнес класу, виконаний у стилі британської архітектури. Перевага будинку - це якісні будівельні матеріали, дорогий інтер'єр холів та екстер'єр прибудинкової території.
Унікальний ЖК "Зелений мис" в одному з районів Одеси, що розвиваються, в Суворовському.
близькість моря, закрита територія, на якій розташовані приватні будинки, таунхауси та 9-поверхові будинки з червоної цегли. природний ставок - чудове місце для релаксу. місця для відпочинку, дитячими та спортивними майданчиками.
Поруч дитячий садок, мережа супермаркетів.
Море у кроковій доступності.
Телефонуйте! Організуємо показ у будь-який зручний для Вас час!
Пропонуємо у продаж 2 кімнатну простору квартиру в новому елітному мікрорайоні на березі мальовничого озера!!
Комплекс Преміум класу "Зелений мис". 3й Англійський дім.
Цегляний будинок, у квартирі своє індивідуальне опалення.
Просторі житлові кімнати -19,2 кв.м та 16,9 кв. м. Велика кухня із виходом на балкон-17,2 кв.м.
Вбиральня.
Стан від будівельників дозволяє зробити власний дизайн ремонт.
Комфортний перший поверх.
Англійський будинок у Зеленому мисі – це комплекс бізнес класу, виконаний у стилі британської архітектури. Перевага будинку - це якісні будівельні матеріали, дорогий інтер'єр холів та екстер'єр прибудинкової території.
Унікальний ЖК "Зелений мис" в одному з районів Одеси, що розвиваються, в Суворовському.
близькість моря, закрита територія, на якій розташовані приватні будинки, таунхауси та 9-поверхові будинки з червоної цегли. природний ставок - чудове місце для релаксу. місця для відпочинку, дитячими та спортивними майданчиками.
Поруч дитячий садок, мережа супермаркетів.
Море у кроковій доступності.
Телефонуйте! Організуємо показ у будь-який зручний для Вас час!
ID: 906366959
Связаться с продавцом
xxx xxx xxx

